Сосновоборский муниципальный фонд поддержки предпринимательства объявляет о начале приема заявок на конкурсный отбор по размещению в помещениях Бизнес-инкубатора производственного и офисного назначений
по адресу: Ленинградская область, г. Сосновый Бор, Гаражный проезд, д.3 и ул. Ленинградская, д.30.
Помещения предоставляются на льготных условиях субъектам малого и среднего предпринимательства (далее – СМП) и самозанятым гражданам сроком не более 3-х лет.
Заявки принимаются с 29.05.2025г. по 06.06.2025г. по адресу: проспект Героев, д. 54а, каб. № 8, 10.
Фонд вправе отказаться от проведения конкурсного отбора не позднее, чем за 3 (три) дня до окончания приема заявок.
Заседание Конкурсной комиссии состоится: 10 июня в 16:00 по адресу: ул. Ленинградская д. 46, каб.243.
Участниками конкурсного отбора могут являться только участники, соответствующие критериям, согласно п. 3.5. Положения о порядке размещения в Сосновоборском Бизнес-инкубаторе (sbor.ru/economy/po...).
Помещение, выставленное на конкурс:
Бизнес-инкубатор производственного назначения:
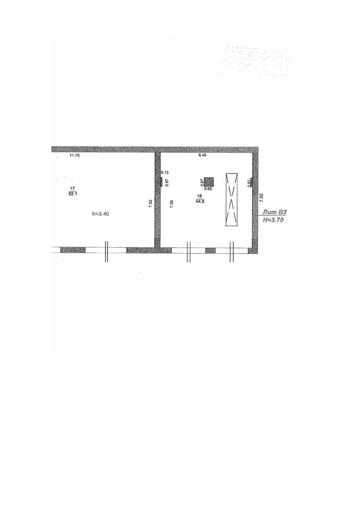
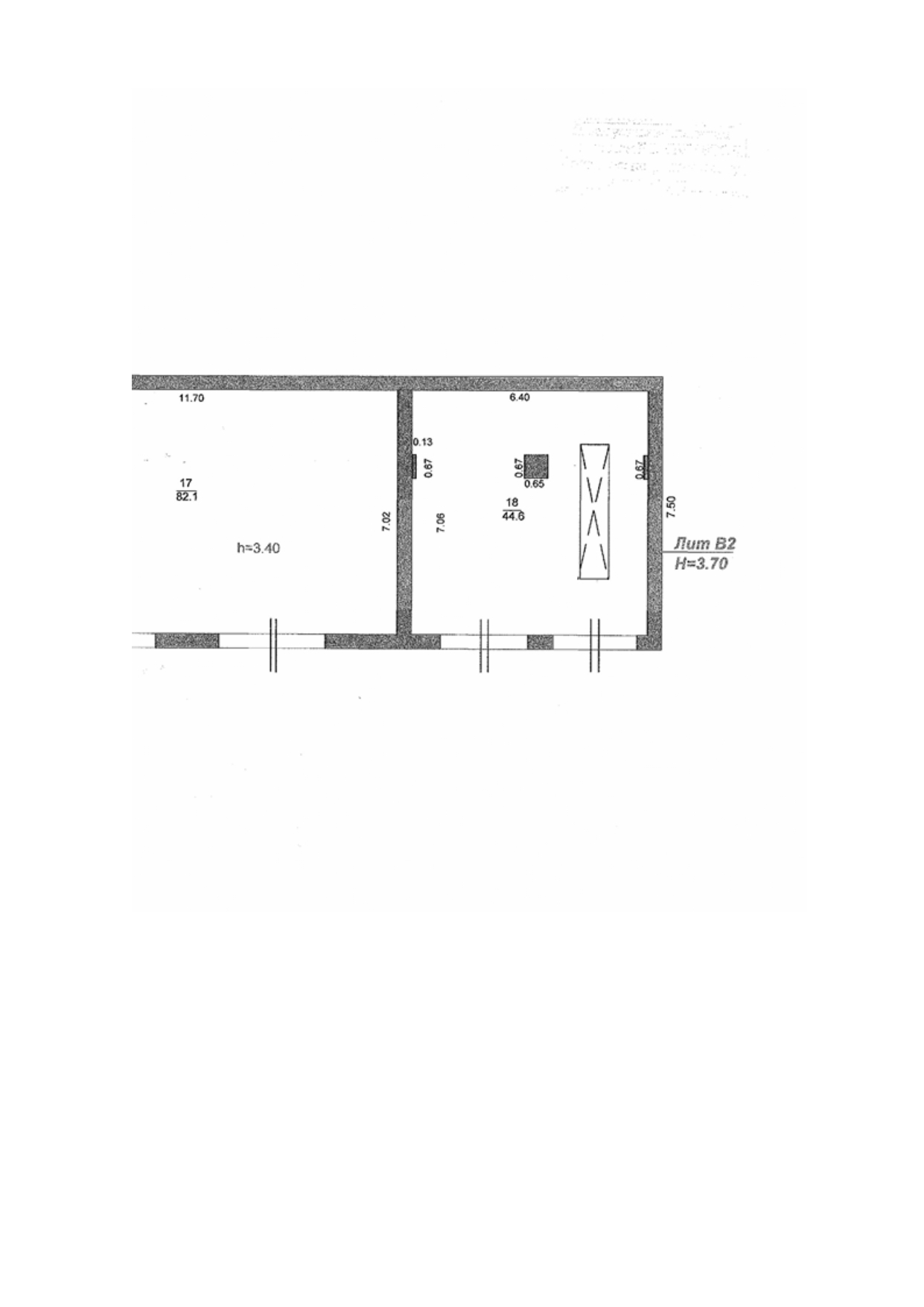
1. Гаражный проезд, д.3, корпус 12, Литер В2. Общая площадь 44,6 кв.м.
2. Гаражный проезд, д.3, корпус 4, Литер Б. Общая площадь 44,8 кв.м.
3. Гаражный проезд, д.3, корпус 12, Литер В2. Общая площадь 82,1 кв.м.
4. Улица Ленинградская, д.30. Площадь офисного помещения 36,6 кв.м
Для записи и получения дополнительной информации пишите в сообщения или звоните по телефону +7 (81369) 7-32-87 и 89219054845.
Место: г. Сосновый Бор, пр. Героев, д. 54а, второй этаж – Сосновоборский фонд поддержки предпринимательства.

Для записи и получения дополнительной информации пишите в сообщения или звоните по телефону +7 (81369) 7-32-87 и 89219054845.
Место: г. Сосновый Бор, пр. Героев, д. 54а, второй этаж – Сосновоборский фонд поддержки предпринимательства.
