Сосновоборский муниципальный фонд поддержки предпринимательства объявляет о начале приема заявок на конкурсный отбор по размещению в помещениях Бизнес-инкубатора офисного назначения по адресу: Ленинградская область, г. Сосновый Бор, проспект Героев, д.54а.
Помещения предоставляется на льготных условиях субъектам малого и среднего предпринимательства (далее – СМП) и самозанятым гражданам сроком не более 3-х лет.
Заявки принимаются с 11.09.2025 г. по 17.09.2025г. по адресу: проспект Героев, д. 54а, каб. № 8, 10.
Фонд вправе отказаться от проведения конкурсного отбора не позднее, чем за 3 (три) дня до окончания приема заявок.
Заседание Конкурсной комиссии состоится: 18 сентября 2025 года в 16:00 по адресу: ул. Ленинградская д. 46, каб.242.
Участниками конкурсного отбора могут являться только участники, соответствующие критериям, согласно п. 3.5. Положения о порядке размещения в Сосновоборском Бизнес-инкубаторе (https://sbor.ru/economy/podderzca/infrastructura/incubator2).
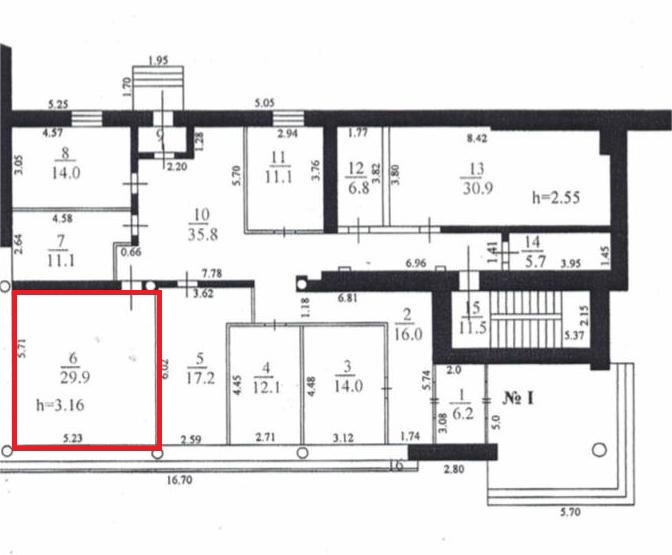
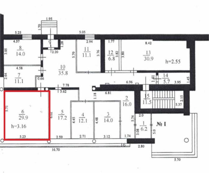
Помещение, выставленное на конкурс:
Бизнес-инкубатор офисного назначения:
1. Проспект Героев, д.54а, помещения № 6. Площадь офисного помещения 29,9 кв.м.
2. Проспект Героев, д.54а, помещения № 7. Площадь офисного помещения 11,1 кв.м.
Срок аренды на льготных условиях не более 3-х лет.
Адрес Фонда: 188542, Ленинградская обл., г. Сосновый Бор, проспект Героев, д. 54а.
Контактный номер телефон: 8 (81369) 7-32-87
Конкурсный отбор по размещению в помещениях Бизнес-инкубатора офисного назначения
10 сентября 2025 09:47 1356

